"Prin Meesupya"


The Creative work Decorative: Interior Design

Srinakharinwirot University

Thailand


CREATIVE WORK


"Residential Space for Generation X Elderly and Multi-Generation Families for Living Sustainability"

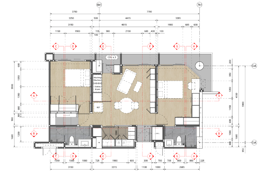
This project reimagines the interior of a 60-square-meter condominium in Bangkok’s Hua Lamphong area, revitalizing a 20-year-old residence for a Generation X mother returning to urban living alongside her Generation Y daughter and grandchildren. The design aims to create a multifunctional, visually appealing space that balances the diverse needs of multi-generational living, fostering equality, belonging, and active participation for all residents. Focusing on sustainable family dynamics, the project promotes creativity, conflict resolution, and self-expression. It involves a comprehensive assessment of plumbing, electrical, structural, and interior elements to ensure the renovation aligns with residents’ specific requirements. The redesign draws inspiration from the United Nations' Sustainable Development Goals (SDGs), emphasizing social equality, alternative materials, and multifunctional spaces that encourage interaction and creativity.

The design process begins with a site survey and consultations with residents to gather insights into their needs. This is followed by iterative design development, informed by case studies on sustainable cohabitation and adaptable spaces. A key feature of the redesign is a central shared area that fosters connection, joy, and interaction among family members.

The final stage includes producing a complete design, detailed documentation, and presenting the work in an exhibition format. By combining sustainable principles with thoughtful design, the project aims to create a harmonious living environment that nurtures enriched family interactions and supports the evolving needs of multi- generational occupants.

GO
TO
TOP